リノベーション
リビング拡張
収納充実
グランピング
キャットウォーク
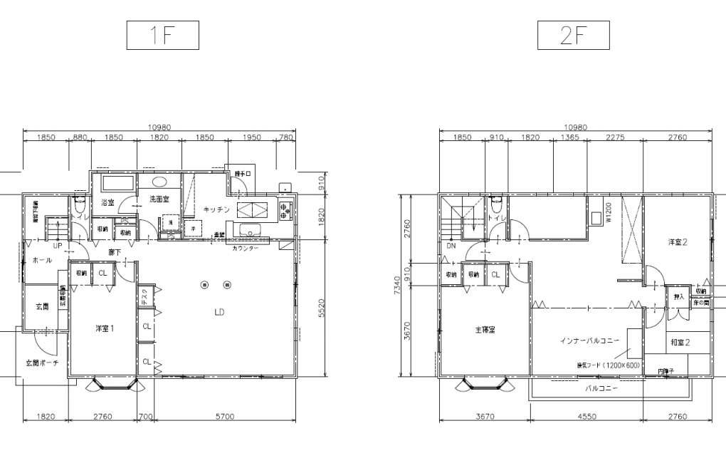
大阪府豊能郡 M様
1Fリビング拡張・2Fリノベーション
BEFORE

STORY
2世帯仕様の戸建て中古住宅に移り住んで14年が経過されたM様ご夫妻。
お子さんが生まれた後も、2階をあまり使わない生活が続いていました。
M様ご家族の趣味のひとつがキャンプ。
ですが、実は休日がご主人やお子さんと合わないことが多い奥様。
使っていない2階スペースで、家でもキャンプ気分を味わえると最高かも・・・
という素敵なアイデアを、多賀工務店にご相談くださいました。
1階の和室を解体してのリビング拡張と合わせ、築35年のお住まいの大改造となりました。
OWNER'S VOICE
2階リノベーション
2階部分をほとんど使わない生活が続いていました。
元2世帯住宅で2階にも浴室・洗面スペースがあるのですが、放置状態の水回り設備は少し不気味ですらありました。
そんな折、世間で流行りのグランピングを見て、「2階をインナーバルコニー風<おうちグランピングスペース>にしたい!」と閃きました。
以前、1階の浴室・洗面スペースのリフォームをお願いしていた多賀工務店さんに、1階リビングを広げる計画と合わせて相談。
営業担当の岡村さんも「営業リフォーム人生で初」とのことでしたが、完成した「おうちグランピング」は訪れた仲間にも大好評!
キッチンや冷蔵庫・トイレもあるので、本当に快適です。
また、使っていなかった不気味な浴室・洗面スペースはウォークインクローゼットに変身。
なくてはならない便利スペースへと生まれ変わりました。
「いいな」と思えるキャンプ・グランピンググッズを揃えて、さらに快適で素敵な空間にしていく楽しみも生まれました。
これからは、ここで家族や友人と、また一人でもキャンプ気分に浸っていきたいと思います。
1階リビング拡張
1階のリビング拡張リフォームは、我が家の2匹の猫も喜んでいます。
以前もキャットウォークはありましたが、今回は大工さんお手製のキャットウォークが誕生。
リビングを囲むように配していただきました。
猫達が好きな場所でゆったりくつろぐ姿を見ると、嬉しくなりますね。
キッチンからリビングダイニングを一望できるようになったことや、大型クローゼットの設置による収納問題の解決など、見違えるように快適な空間になりました。
クローゼットにはスタディスペースもあるので、息子の宿題もはかどりそうです。
大きなソファの上でくつろぐ私達家族と、おのおのが好きな場所でのんびりする猫達。
以前は和室に圧迫されがちなリビングダイニングでしたので、開放的なリビングになり、家族もたいへん喜んでいます。
1階・2階とも大きく様変わりした我が家。
今回のリフォーム・リノベーションで、やっと自分達仕様の家になった、そんな風に感じています。
完工日
2023年10月
建物概要
戸建て 築35年
施工箇所
1階リビング拡張・2階リビングリノベーション・トイレ(2カ所)
費用
480万
施工期間
約1.5ヵ月
-
SNS
商品情報
2階室内建具/タチカワブラインド
商品情報
2階キッチン/タカラスタンダード 木製キャビネットシンク
商品情報
1階クローゼット扉/Panasonic PA型/3380×2035/直付けレール3方枠
商品情報
1・2階トイレ/TOTO レストパル
カテゴリCategory/
その他の施工実績はこちら
-
内装・改修リフォーム
川辺郡 U様
補助金を活用した水まわりリフォーム|浴室拡張&エコキュート導入で快適な住まいへ
-
リノベーション
大阪市阿倍野区 K様
築47年の実家を賃貸住宅へ|住む人目線で整えた再生リノベーション
-
内装・改修リフォーム
川西市 F様
マンションリフォーム
-
内装・改修リフォーム
豊中市 O様
床リフォーム
-
外壁・屋根の改装・リフォーム
豊中市 M様
外壁塗装・瓦補修
-
内装・改修リフォーム
豊中市 D様
マンションリフォーム
-
玄関・窓まわりリフォーム
吹田市 D様
外構リフォーム
-
内装・改修リフォーム
外壁・屋根の改装・リフォーム
玄関・窓まわりリフォーム
大阪市西淀川区 U様
水まわり・外壁塗装・屋根・内窓リフォーム
-
内装・改修リフォーム
玄関・窓まわりリフォーム
兵庫県尼崎市 K様
和室→洋室・トイレ・エクステリアリフォーム
-
内装・改修リフォーム
大阪府箕面市 O様
マンションリノベーション
-
玄関・窓まわりリフォーム
兵庫県尼崎市 T様
カーポート新設リフォーム
-
内装・改修リフォーム
兵庫県川西市 O様
戸建てリノベーション
-
外壁・屋根の改装・リフォーム
大阪市淀川区 O様
外壁・屋根塗装
-
外壁・屋根の改装・リフォーム
大阪府豊中市 N様
外壁・屋根塗装
-
内装・改修リフォーム
大阪府吹田市 D様
水まわり・和室→洋室リフォーム
-
リノベーション
コンテスト受賞
大阪府高槻市 M様
戸建てリノベーション
-
内装・改修リフォーム
兵庫県川西市 O様
リビング内装・サニタリーリフォーム
-
リノベーション
コンテスト受賞
大阪市旭区 W様
2Fリノベーション
-
内装・改修リフォーム
コンテスト受賞
大阪府豊中市 Y様
マンション改修
-
内装・改修リフォーム
玄関・窓まわりリフォーム
大阪府豊中市 S様
マンション改修
-
外壁・屋根の改装・リフォーム
大阪府豊中市 H様
外壁・屋根塗装リフォーム
-
内装・改修リフォーム
兵庫県川西市 K様
サニタリーリフォーム
-
外壁・屋根の改装・リフォーム
リノベーション
大阪市西淀川区 Y様
2・3階リノベーション
-
内装・改修リフォーム
玄関・窓まわりリフォーム
大阪府豊中市 K様
内装・水まわり・エクステリアリフォーム
-
外壁・屋根の改装・リフォーム
玄関・窓まわりリフォーム
大阪府枚方市 A様
外壁塗装・エクステリアリフォーム
-
内装・改修リフォーム
大阪府池田市 H様
改修リフォーム
-
内装・改修リフォーム
店舗・社屋改装
大阪府豊中市 学校法人 大商学園高等学校様
カフェテリアリフォーム
-
内装・改修リフォーム
玄関・窓まわりリフォーム
大阪府吹田市 F 様
マンションリフォーム
-
内装・改修リフォーム
リノベーション
玄関・窓まわりリフォーム
兵庫県川西市 I様
戸建てリノベーション
-
内装・改修リフォーム
リノベーション
兵庫県 T様
マンションリノベーション
-
内装・改修リフォーム
玄関・窓まわりリフォーム
大阪府豊中市 N様
1F改修リフォーム
-
大阪府豊中市 N様
新築事例
-
リノベーション
玄関・窓まわりリフォーム
兵庫県尼崎市 I様
リノベーション
-
店舗・社屋改装
大阪府池田市 多機能型事務所Gootela(ぐーてら)様
店舗リフォーム
-
リノベーション
大阪府豊能郡 M様
1Fリビング拡張・2Fリノベーション
-
店舗・社屋改装
大阪市北区 Lounge Range 大阪様
店舗リフォーム
-
外壁・屋根の改装・リフォーム
リノベーション
コンテスト受賞
大阪府 H様
戸建てリノベーション
-
リノベーション
コンテスト受賞
大阪府豊中市 N様
マンションリノベーション
-
リノベーション
大阪府箕面市 S様
マンションリノベーション
-
内装・改修リフォーム
玄関・窓まわりリフォーム
兵庫県西宮市 K様
1F改修リフォーム
-
店舗・社屋改装
大阪府豊中市 株式会社 整備技研 様
社屋新設
-
内装・改修リフォーム
兵庫県西宮市 Y様
マンションリフォーム
-
内装・改修リフォーム
外壁・屋根の改装・リフォーム
玄関・窓まわりリフォーム
大阪府豊中市 N様
改修リフォーム
-
内装・改修リフォーム
大阪府豊中市 Y様
改修リフォーム
-
内装・改修リフォーム
玄関・窓まわりリフォーム
大阪府豊中市 I様
和室 → 洋室リフォーム
-
外壁・屋根の改装・リフォーム
リノベーション
兵庫県尼崎市 M様
戸建てリノベーション
-
外壁・屋根の改装・リフォーム
リノベーション
コンテスト受賞
大阪市 W様
戸建てリノベーション
-
店舗・社屋改装
大阪府池田市 MOMB石橋 放課後デイサービス様
店舗リフォーム
-
内装・改修リフォーム
大阪市 D様
マンションリフォーム
-
外壁・屋根の改装・リフォーム
リノベーション
兵庫県西宮市 O様
戸建てリノベーション
-
外壁・屋根の改装・リフォーム
リノベーション
大阪府羽曳野市 U様
マンションリノベーション
-
内装・改修リフォーム
玄関・窓まわりリフォーム
大阪府豊中市 I様邸
リビングダイニングリフォーム
-
内装・改修リフォーム
外壁・屋根の改装・リフォーム
玄関・窓まわりリフォーム
大阪府藤井寺市 H様邸
改修リフォーム
-
リノベーション
コンテスト受賞
大阪市 M様
マンションリノベーション
-
内装・改修リフォーム
大阪府豊中市 A様邸
マンションリフォーム
-
リノベーション
玄関・窓まわりリフォーム
兵庫県三田市 M様邸
離れ改修工事
-
内装・改修リフォーム
大阪府吹田市 I様邸
水廻りリフォーム
-
リノベーション
大阪府豊中市 YumHouse様
マンションリノベーション
-
内装・改修リフォーム
大阪府豊中市 M様邸
リビング拡張LDKリフォーム
-
リノベーション
コンテスト受賞
大阪市 Y様邸
2世帯住宅リノベーション
-
店舗・社屋改装
大阪府豊中市 裕 HIRO 様
新設改装リフォーム
-
内装・改修リフォーム
外壁・屋根の改装・リフォーム
玄関・窓まわりリフォーム
大阪府高槻市 T様邸
改修リフォーム
-
内装・改修リフォーム
玄関・窓まわりリフォーム
大阪府豊中市 K様邸
改修リフォーム
-
リノベーション
兵庫県宝塚市 U様邸
戸建てリノベーション
-
店舗・社屋改装
大阪府豊中市 ワールドプラスジム豊中桜塚店 様
新設改装リフォーム
-
リノベーション
兵庫県尼崎市 Y様邸
4Fリノベーション
-
外壁・屋根の改装・リフォーム
店舗・社屋改装
大阪府池田市 東山自動車工業 株式会社 様
屋根・外壁 塗装リフォーム
-
内装・改修リフォーム
京都市 N様邸
マンションリフォーム
-
内装・改修リフォーム
兵庫県西宮市 U様邸
マンションリフォーム
-
店舗・社屋改装
大阪府守口市 ルポゼソリューション株式会社 様
事務所リフォーム
-
内装・改修リフォーム
兵庫県尼崎市 F様邸
内装・水まわりリフォーム
-
内装・改修リフォーム
大阪府池田市 S様邸
LDK拡張リフォーム
-
内装・改修リフォーム
兵庫県伊丹市 M様邸
幹太くん設置
-
内装・改修リフォーム
大阪府豊能郡 S様邸
キャットウォーク施工
-
外壁・屋根の改装・リフォーム
兵庫県川西市 K様邸
屋根塗装
-
内装・改修リフォーム
兵庫県川西市 K様邸
LDKリフォーム
-
外壁・屋根の改装・リフォーム
大阪府豊中市 I様邸
外壁塗装
-
内装・改修リフォーム
コンテスト受賞
兵庫県宝塚市 T様邸
マンションリフォーム
-
内装・改修リフォーム
大阪府豊中市 S様邸
マンションリフォーム
-
内装・改修リフォーム
兵庫県川辺郡 M様邸
キッチンリフォーム
-
内装・改修リフォーム
大阪府豊中市 Y様邸
マンションリフォーム
-
外壁・屋根の改装・リフォーム
兵庫県尼崎市 N様邸
屋根 葺き替えリフォーム
-
外壁・屋根の改装・リフォーム
兵庫県尼崎市 N様邸
外壁塗装
-
内装・改修リフォーム
兵庫県尼崎市 N様邸
2・3F改修リフォーム
-
内装・改修リフォーム
大阪府箕面市 O様邸
2F改修リフォーム
-
内装・改修リフォーム
コンテスト受賞
兵庫県西宮市 F様邸
マンションリフォーム
-
店舗・社屋改装
大阪府吹田市 ビタレーザラボ様
フィットネスジム新設
-
内装・改修リフォーム
大阪府豊中市 Y様邸
改装リフォーム
-
内装・改修リフォーム
大阪府豊中市 T様邸
乾太くん設置
-
玄関・窓まわりリフォーム
大阪府豊中市 T様邸
宅配ポスト設置
-
内装・改修リフォーム
兵庫県尼崎市 K様邸
マンションリフォーム
-
内装・改修リフォーム
大阪府茨木市 S様邸
改修リフォーム
-
外壁・屋根の改装・リフォーム
兵庫県宝塚市 M様邸
屋根・外壁塗装
-
外壁・屋根の改装・リフォーム
大阪府豊中市 N様邸
マンション外壁塗装リフォーム
-
リノベーション
コンテスト受賞
大阪府豊中市 N様邸
マンションリノベーション
-
店舗・社屋改装
大阪府豊中市 レンガ 株式会社ワタナベ 様
社屋新設
-
外壁・屋根の改装・リフォーム
玄関・窓まわりリフォーム
兵庫県川西市 M様邸
屋根・外壁 塗装リフォーム
-
内装・改修リフォーム
兵庫県宝塚市 S様邸
マンションリフォーム
-
店舗・社屋改装
大阪府豊中市 お魚とおでんとお寿司1122 富久田や 様
店舗内装リフォーム
-
内装・改修リフォーム
大阪市西淀川区 K様邸
改装リフォーム
-
店舗・社屋改装
大阪府箕面市 季節天ぷら料理 笑和 様
新設改装リフォーム
-
内装・改修リフォーム
大阪府豊中市 H様邸
キッチン収納リフォーム
-
外壁・屋根の改装・リフォーム
大阪府豊中市 T様邸
屋根・外壁 塗装リフォーム
-
リノベーション
大阪府豊中市 K様邸
平屋リノベーション
-
リノベーション
大阪府箕面市 I様邸
2Fリノベーション
-
店舗・社屋改装
大阪府豊中市 包装・梱包 ニューDM社 様
工場区画リフォーム
-
外壁・屋根の改装・リフォーム
大阪府吹田市 Y様邸
屋根 葺き替えリフォーム
-
内装・改修リフォーム
大阪府箕面市 Y様邸
マンションリフォーム
-
内装・改修リフォーム
兵庫県西宮市 K様邸
和室→洋室リフォーム
-
内装・改修リフォーム
大阪府豊中市 N様邸
トイレ内装リフォーム
-
店舗・社屋改装
大阪府伊丹市 フィットネスジム SDF24伊丹 様
新設改装リフォーム
-
内装・改修リフォーム
大阪市 S様邸
キッチン・内装リフォーム
-
外壁・屋根の改装・リフォーム
大阪府豊中市 Y様邸
屋根 葺替えリフォーム
-
リノベーション
大阪市 T様邸
マンションリノベーション
-
内装・改修リフォーム
大阪市 M様邸
LDKリフォーム
-
内装・改修リフォーム
兵庫県宝塚市 F様邸
1F改装リフォーム
-
外壁・屋根の改装・リフォーム
大阪市淀川区 W様邸
屋根 葺替えリフォーム(台風被害復旧)
-
店舗・社屋改装
大阪府豊中市 喜界島ざらめの焼き菓子工房 haba sa hana 様
新設改装リフォーム




















