外壁・屋根の改装・リフォーム
リノベーション
断熱
ウッドデッキ
補助金
兵庫県西宮市 O様
戸建てリノベーション
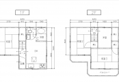
BEFORE
STORY
結婚を機に中古住宅を購入されたO様ご夫妻。
・購入後25年が経ち、住まい全体がリフォーム時期を迎えている
・成長された2人の息子さん達に、それぞれ個室を提供する必要性を感じている
・奥様のお母様と同居をスタート
これらの事情から、一旦更地にして新築を建てるか、リノベーションにするか、はたまた尼崎のお母様の家へご自分達が移り住むか・・・様々な選択肢を検討された結果、リノベーションがベストだという結果を導き出され、多賀工務店に工事をご依頼くださいました。
OWNER'S VOICE
他社さんにも見積りを依頼していましたが、結果、いろんな経験や技をお持ちの自社職人さんに施工いただける多賀工務店さんにお願いして本当に良かったです。
工事中に現場を訪れた際、猛暑の中で若い大工さん達が責任感を持って仕事に取り組んでいる姿をよくお見掛けしました。これがたいへん印象に残っています。
また、プランや仕様決めにおいても、ユーザー目線での選択肢を残しながら、私達が後悔することのないようにリードくださったことに、感謝しています。
我が家の個性の強い面々の希望を部屋ごとに叶えていただき、狭い敷地を最大限に広く活用していただきました。
思い思いにそれぞれの部屋を飾る息子達、家事動線の便利さや夏でも涼しいキッチンに感激する妻、健やかに暮らす義母。
家族のそんな姿を眺めながら、このリノベーションが間違いのない選択だったと確信し、嬉しく感じる日々を過ごしています。
完工日
2022年6月
建物概要
戸建て 築40年
施工箇所
スケルトンからの全面改修
費用
1720万
施工期間
2.5ヵ月
家族構成
ご夫婦、息子さん、娘さん
商品情報
キッチン:LIXIL「シエラS」L型 + キャビネット
商品情報
浴室:LIXIL「アライズ」1216
商品情報
玄関ドア:LIXIL「エルムーブ2」
申請した補助金
こどもみらい住宅支援事業
カテゴリCategory/
その他の施工実績はこちら
-
内装・改修リフォーム
川辺郡 U様
補助金を活用した水まわりリフォーム|浴室拡張&エコキュート導入で快適な住まいへ
-
リノベーション
大阪市阿倍野区 K様
築47年の実家を賃貸住宅へ|住む人目線で整えた再生リノベーション
-
内装・改修リフォーム
川西市 F様
マンションリフォーム
-
内装・改修リフォーム
豊中市 O様
床リフォーム
-
外壁・屋根の改装・リフォーム
豊中市 M様
外壁塗装・瓦補修
-
内装・改修リフォーム
豊中市 D様
マンションリフォーム
-
玄関・窓まわりリフォーム
吹田市 D様
外構リフォーム
-
内装・改修リフォーム
外壁・屋根の改装・リフォーム
玄関・窓まわりリフォーム
大阪市西淀川区 U様
水まわり・外壁塗装・屋根・内窓リフォーム
-
内装・改修リフォーム
玄関・窓まわりリフォーム
兵庫県尼崎市 K様
和室→洋室・トイレ・エクステリアリフォーム
-
内装・改修リフォーム
大阪府箕面市 O様
マンションリノベーション
-
玄関・窓まわりリフォーム
兵庫県尼崎市 T様
カーポート新設リフォーム
-
内装・改修リフォーム
兵庫県川西市 O様
戸建てリノベーション
-
外壁・屋根の改装・リフォーム
大阪市淀川区 O様
外壁・屋根塗装
-
外壁・屋根の改装・リフォーム
大阪府豊中市 N様
外壁・屋根塗装
-
内装・改修リフォーム
大阪府吹田市 D様
水まわり・和室→洋室リフォーム
-
リノベーション
コンテスト受賞
大阪府高槻市 M様
戸建てリノベーション
-
内装・改修リフォーム
兵庫県川西市 O様
リビング内装・サニタリーリフォーム
-
リノベーション
コンテスト受賞
大阪市旭区 W様
2Fリノベーション
-
内装・改修リフォーム
コンテスト受賞
大阪府豊中市 Y様
マンション改修
-
内装・改修リフォーム
玄関・窓まわりリフォーム
大阪府豊中市 S様
マンション改修
-
外壁・屋根の改装・リフォーム
大阪府豊中市 H様
外壁・屋根塗装リフォーム
-
内装・改修リフォーム
兵庫県川西市 K様
サニタリーリフォーム
-
外壁・屋根の改装・リフォーム
リノベーション
大阪市西淀川区 Y様
2・3階リノベーション
-
内装・改修リフォーム
玄関・窓まわりリフォーム
大阪府豊中市 K様
内装・水まわり・エクステリアリフォーム
-
外壁・屋根の改装・リフォーム
玄関・窓まわりリフォーム
大阪府枚方市 A様
外壁塗装・エクステリアリフォーム
-
内装・改修リフォーム
大阪府池田市 H様
改修リフォーム
-
内装・改修リフォーム
店舗・社屋改装
大阪府豊中市 学校法人 大商学園高等学校様
カフェテリアリフォーム
-
内装・改修リフォーム
玄関・窓まわりリフォーム
大阪府吹田市 F 様
マンションリフォーム
-
内装・改修リフォーム
リノベーション
玄関・窓まわりリフォーム
兵庫県川西市 I様
戸建てリノベーション
-
内装・改修リフォーム
リノベーション
兵庫県 T様
マンションリノベーション
-
内装・改修リフォーム
玄関・窓まわりリフォーム
大阪府豊中市 N様
1F改修リフォーム
-
大阪府豊中市 N様
新築事例
-
リノベーション
玄関・窓まわりリフォーム
兵庫県尼崎市 I様
リノベーション
-
店舗・社屋改装
大阪府池田市 多機能型事務所Gootela(ぐーてら)様
店舗リフォーム
-
リノベーション
大阪府豊能郡 M様
1Fリビング拡張・2Fリノベーション
-
店舗・社屋改装
大阪市北区 Lounge Range 大阪様
店舗リフォーム
-
外壁・屋根の改装・リフォーム
リノベーション
コンテスト受賞
大阪府 H様
戸建てリノベーション
-
リノベーション
コンテスト受賞
大阪府豊中市 N様
マンションリノベーション
-
リノベーション
大阪府箕面市 S様
マンションリノベーション
-
内装・改修リフォーム
玄関・窓まわりリフォーム
兵庫県西宮市 K様
1F改修リフォーム
-
店舗・社屋改装
大阪府豊中市 株式会社 整備技研 様
社屋新設
-
内装・改修リフォーム
兵庫県西宮市 Y様
マンションリフォーム
-
内装・改修リフォーム
外壁・屋根の改装・リフォーム
玄関・窓まわりリフォーム
大阪府豊中市 N様
改修リフォーム
-
内装・改修リフォーム
大阪府豊中市 Y様
改修リフォーム
-
内装・改修リフォーム
玄関・窓まわりリフォーム
大阪府豊中市 I様
和室 → 洋室リフォーム
-
外壁・屋根の改装・リフォーム
リノベーション
兵庫県尼崎市 M様
戸建てリノベーション
-
外壁・屋根の改装・リフォーム
リノベーション
コンテスト受賞
大阪市 W様
戸建てリノベーション
-
店舗・社屋改装
大阪府池田市 MOMB石橋 放課後デイサービス様
店舗リフォーム
-
内装・改修リフォーム
大阪市 D様
マンションリフォーム
-
外壁・屋根の改装・リフォーム
リノベーション
兵庫県西宮市 O様
戸建てリノベーション
-
外壁・屋根の改装・リフォーム
リノベーション
大阪府羽曳野市 U様
マンションリノベーション
-
内装・改修リフォーム
玄関・窓まわりリフォーム
大阪府豊中市 I様邸
リビングダイニングリフォーム
-
内装・改修リフォーム
外壁・屋根の改装・リフォーム
玄関・窓まわりリフォーム
大阪府藤井寺市 H様邸
改修リフォーム
-
リノベーション
コンテスト受賞
大阪市 M様
マンションリノベーション
-
内装・改修リフォーム
大阪府豊中市 A様邸
マンションリフォーム
-
リノベーション
玄関・窓まわりリフォーム
兵庫県三田市 M様邸
離れ改修工事
-
内装・改修リフォーム
大阪府吹田市 I様邸
水廻りリフォーム
-
リノベーション
大阪府豊中市 YumHouse様
マンションリノベーション
-
内装・改修リフォーム
大阪府豊中市 M様邸
リビング拡張LDKリフォーム
-
リノベーション
コンテスト受賞
大阪市 Y様邸
2世帯住宅リノベーション
-
店舗・社屋改装
大阪府豊中市 裕 HIRO 様
新設改装リフォーム
-
内装・改修リフォーム
外壁・屋根の改装・リフォーム
玄関・窓まわりリフォーム
大阪府高槻市 T様邸
改修リフォーム
-
内装・改修リフォーム
玄関・窓まわりリフォーム
大阪府豊中市 K様邸
改修リフォーム
-
リノベーション
兵庫県宝塚市 U様邸
戸建てリノベーション
-
店舗・社屋改装
大阪府豊中市 ワールドプラスジム豊中桜塚店 様
新設改装リフォーム
-
リノベーション
兵庫県尼崎市 Y様邸
4Fリノベーション
-
外壁・屋根の改装・リフォーム
店舗・社屋改装
大阪府池田市 東山自動車工業 株式会社 様
屋根・外壁 塗装リフォーム
-
内装・改修リフォーム
京都市 N様邸
マンションリフォーム
-
内装・改修リフォーム
兵庫県西宮市 U様邸
マンションリフォーム
-
店舗・社屋改装
大阪府守口市 ルポゼソリューション株式会社 様
事務所リフォーム
-
内装・改修リフォーム
兵庫県尼崎市 F様邸
内装・水まわりリフォーム
-
内装・改修リフォーム
大阪府池田市 S様邸
LDK拡張リフォーム
-
内装・改修リフォーム
兵庫県伊丹市 M様邸
幹太くん設置
-
内装・改修リフォーム
大阪府豊能郡 S様邸
キャットウォーク施工
-
外壁・屋根の改装・リフォーム
兵庫県川西市 K様邸
屋根塗装
-
内装・改修リフォーム
兵庫県川西市 K様邸
LDKリフォーム
-
外壁・屋根の改装・リフォーム
大阪府豊中市 I様邸
外壁塗装
-
内装・改修リフォーム
コンテスト受賞
兵庫県宝塚市 T様邸
マンションリフォーム
-
内装・改修リフォーム
大阪府豊中市 S様邸
マンションリフォーム
-
内装・改修リフォーム
兵庫県川辺郡 M様邸
キッチンリフォーム
-
内装・改修リフォーム
大阪府豊中市 Y様邸
マンションリフォーム
-
外壁・屋根の改装・リフォーム
兵庫県尼崎市 N様邸
屋根 葺き替えリフォーム
-
外壁・屋根の改装・リフォーム
兵庫県尼崎市 N様邸
外壁塗装
-
内装・改修リフォーム
兵庫県尼崎市 N様邸
2・3F改修リフォーム
-
内装・改修リフォーム
大阪府箕面市 O様邸
2F改修リフォーム
-
内装・改修リフォーム
コンテスト受賞
兵庫県西宮市 F様邸
マンションリフォーム
-
店舗・社屋改装
大阪府吹田市 ビタレーザラボ様
フィットネスジム新設
-
内装・改修リフォーム
大阪府豊中市 Y様邸
改装リフォーム
-
内装・改修リフォーム
大阪府豊中市 T様邸
乾太くん設置
-
玄関・窓まわりリフォーム
大阪府豊中市 T様邸
宅配ポスト設置
-
内装・改修リフォーム
兵庫県尼崎市 K様邸
マンションリフォーム
-
内装・改修リフォーム
大阪府茨木市 S様邸
改修リフォーム
-
外壁・屋根の改装・リフォーム
兵庫県宝塚市 M様邸
屋根・外壁塗装
-
外壁・屋根の改装・リフォーム
大阪府豊中市 N様邸
マンション外壁塗装リフォーム
-
リノベーション
コンテスト受賞
大阪府豊中市 N様邸
マンションリノベーション
-
店舗・社屋改装
大阪府豊中市 レンガ 株式会社ワタナベ 様
社屋新設
-
外壁・屋根の改装・リフォーム
玄関・窓まわりリフォーム
兵庫県川西市 M様邸
屋根・外壁 塗装リフォーム
-
内装・改修リフォーム
兵庫県宝塚市 S様邸
マンションリフォーム
-
店舗・社屋改装
大阪府豊中市 お魚とおでんとお寿司1122 富久田や 様
店舗内装リフォーム
-
内装・改修リフォーム
大阪市西淀川区 K様邸
改装リフォーム
-
店舗・社屋改装
大阪府箕面市 季節天ぷら料理 笑和 様
新設改装リフォーム
-
内装・改修リフォーム
大阪府豊中市 H様邸
キッチン収納リフォーム
-
外壁・屋根の改装・リフォーム
大阪府豊中市 T様邸
屋根・外壁 塗装リフォーム
-
リノベーション
大阪府豊中市 K様邸
平屋リノベーション
-
リノベーション
大阪府箕面市 I様邸
2Fリノベーション
-
店舗・社屋改装
大阪府豊中市 包装・梱包 ニューDM社 様
工場区画リフォーム
-
外壁・屋根の改装・リフォーム
大阪府吹田市 Y様邸
屋根 葺き替えリフォーム
-
内装・改修リフォーム
大阪府箕面市 Y様邸
マンションリフォーム
-
内装・改修リフォーム
兵庫県西宮市 K様邸
和室→洋室リフォーム
-
内装・改修リフォーム
大阪府豊中市 N様邸
トイレ内装リフォーム
-
店舗・社屋改装
大阪府伊丹市 フィットネスジム SDF24伊丹 様
新設改装リフォーム
-
内装・改修リフォーム
大阪市 S様邸
キッチン・内装リフォーム
-
外壁・屋根の改装・リフォーム
大阪府豊中市 Y様邸
屋根 葺替えリフォーム
-
リノベーション
大阪市 T様邸
マンションリノベーション
-
内装・改修リフォーム
大阪市 M様邸
LDKリフォーム
-
内装・改修リフォーム
兵庫県宝塚市 F様邸
1F改装リフォーム
-
外壁・屋根の改装・リフォーム
大阪市淀川区 W様邸
屋根 葺替えリフォーム(台風被害復旧)
-
店舗・社屋改装
大阪府豊中市 喜界島ざらめの焼き菓子工房 haba sa hana 様
新設改装リフォーム



















