リノベーション
住宅性能向上
賃貸向けリノベ
大阪市阿倍野区 K様
築47年の実家を賃貸住宅へ|住む人目線で整えた再生リノベーション
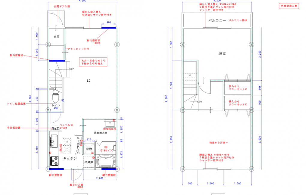
BEFORE


STORY
ご両親がお住まいだったご実家を、賃貸住宅として再生。
入居者の快適性と、住まいを長く活かすための住宅性能向上の両立にこだわり、築約50年の建物に新たな価値を吹き込んだリノベーション事例です。
OWNER'S VOICE
実家を次の世代へつなぐために
築47年、父が建て、両親が住んできた家です。この家を将来的に賃貸として活用することを前提に、私たち夫婦は別に二世帯住宅を新築し、両親と同居することにしました。
新築工事がスタートしてからは妻の実家で仮住まいをし、二世帯住宅の完成と同時に、こちらの家もすぐ賃貸として貸し出せるようリノベーションを進める必要がありました。
工務店探しをしていた中で、知人を通じて多賀工務店さんをご紹介いただいたのがご縁です。
短期間での新築とリフォーム|経験を活かした家づくり
注文住宅の仕様決めと並行する形でのリフォームとなり、正直決めることは多く大変でした。ただ、新築での経験があったことで、ある程度のイメージや感覚を共有しながら進められたのは大きかったと思います。
コーディネートは主に妻が担当してくれていましたが、多賀工務店のスタッフさんにも相談に乗ってもらえたおかげで、よりいい仕上がりになったと夫婦で話しています。
解体してみないと分からない部分もあり、プランは合計で4回ほど作り直していただきましたが、その分納得のいく形に近づけることができました。
賃貸としての価値を高めるプランニング
今回のリノベーションでは、「住む人にとって使いやすいか」という視点を大切にしました。近隣の不動産会社にも相談し、賃貸物件として好まれる仕様も取り入れながら検討。
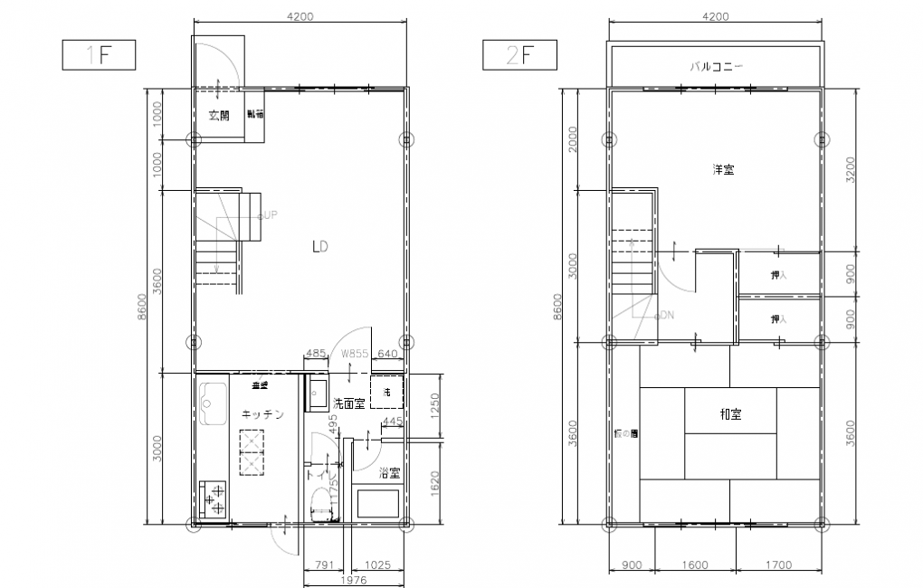
最終的には、1階のLDKの開放感と水まわり動線のバランスを重視したプランに落ち着きました。特にトイレの位置を変更してお風呂を広くできたことは、大きなポイントになったと感じています。
また、外構についても劣化していたブロック塀を撤去し、駐車スペースとして活用できるようにしました。
住宅性能へのこだわり|見えない部分こそ大切に
父の知人の大工さんがしっかり建ててくれていたおかげで、シロアリ被害もなく、建物の状態は良好でした。その上で、新たに筋交いを数ヶ所追加し、躯体の強度をさらに向上させることができました。
土間打ちを行ったことで、大きな車が通った際に感じていた振動も軽減され、住環境としての安心感も増しています。
また、1階の窓面積を見直し、すべての窓を断熱性能の高いものへ変更。結果として防音性も高まり、賃貸住宅としての快適性をより高めることができました。
暮らしを想定した細かな工夫
実際に住んでいた経験をもとに、家族それぞれの意見を反映し、細かな部分にもこだわりました。
例えば、1階のエアコンの風が2階へ流れやすかった点を改善するため、踊り場にカーテンレールを設置。
また、階段についてもご希望の仕様はありましたが、段差の変化によるつまずきのリスクがあったため見送り、段差を変えない施工方法で仕上げました。
見た目だけでなく、日々の使い心地と安心感を大切にした住まいづくりを意識しました。
完成を迎えて|これからも住み継がれる家に
完成した住まいは、築50年近い建物とは思えないほどきれいに仕上がり、安心しました。古さを感じさせない状態に整えていただき、この先も長く残していけると感じています。
これからご縁のあった方に気に入っていただき、長く住んでいただければ本当に嬉しいです。
完工日
2026年1月
建物概要
戸建て 築47年
施工箇所
室内フルリノベーション、外壁塗装
費用
1200万
施工期間
約3ヶ月
商品情報
キッチン:LIXILシエラS I型 w2250 ラスティックアッシュ
商品情報
浴室:LIXILリデアMタイプ1216 マーフィルベージュ
商品情報
洗面化粧台:LIXILピアラ w750 クリエペール
商品情報
トイレ:LIXILアメージュ リトイレ
商品情報
玄関ドア:LIXILリシェント玄関ドア3 K4 D77型 HC
商品情報
フローリング:DIKENイエリア ライトオーカー
クロス品番
洋室クローゼット内|サンゲツSP2545
カテゴリCategory/
その他の施工実績はこちら
-
内装・改修リフォーム
川辺郡 U様
補助金を活用した水まわりリフォーム|浴室拡張&エコキュート導入で快適な住まいへ
-
リノベーション
大阪市阿倍野区 K様
築47年の実家を賃貸住宅へ|住む人目線で整えた再生リノベーション
-
内装・改修リフォーム
川西市 F様
マンションリフォーム
-
内装・改修リフォーム
豊中市 O様
床リフォーム
-
外壁・屋根の改装・リフォーム
豊中市 M様
外壁塗装・瓦補修
-
内装・改修リフォーム
豊中市 D様
マンションリフォーム
-
玄関・窓まわりリフォーム
吹田市 D様
外構リフォーム
-
内装・改修リフォーム
外壁・屋根の改装・リフォーム
玄関・窓まわりリフォーム
大阪市西淀川区 U様
水まわり・外壁塗装・屋根・内窓リフォーム
-
内装・改修リフォーム
玄関・窓まわりリフォーム
兵庫県尼崎市 K様
和室→洋室・トイレ・エクステリアリフォーム
-
内装・改修リフォーム
大阪府箕面市 O様
マンションリノベーション
-
玄関・窓まわりリフォーム
兵庫県尼崎市 T様
カーポート新設リフォーム
-
内装・改修リフォーム
兵庫県川西市 O様
戸建てリノベーション
-
外壁・屋根の改装・リフォーム
大阪市淀川区 O様
外壁・屋根塗装
-
外壁・屋根の改装・リフォーム
大阪府豊中市 N様
外壁・屋根塗装
-
内装・改修リフォーム
大阪府吹田市 D様
水まわり・和室→洋室リフォーム
-
リノベーション
コンテスト受賞
大阪府高槻市 M様
戸建てリノベーション
-
内装・改修リフォーム
兵庫県川西市 O様
リビング内装・サニタリーリフォーム
-
リノベーション
コンテスト受賞
大阪市旭区 W様
2Fリノベーション
-
内装・改修リフォーム
コンテスト受賞
大阪府豊中市 Y様
マンション改修
-
内装・改修リフォーム
玄関・窓まわりリフォーム
大阪府豊中市 S様
マンション改修
-
外壁・屋根の改装・リフォーム
大阪府豊中市 H様
外壁・屋根塗装リフォーム
-
内装・改修リフォーム
兵庫県川西市 K様
サニタリーリフォーム
-
外壁・屋根の改装・リフォーム
リノベーション
大阪市西淀川区 Y様
2・3階リノベーション
-
内装・改修リフォーム
玄関・窓まわりリフォーム
大阪府豊中市 K様
内装・水まわり・エクステリアリフォーム
-
外壁・屋根の改装・リフォーム
玄関・窓まわりリフォーム
大阪府枚方市 A様
外壁塗装・エクステリアリフォーム
-
内装・改修リフォーム
大阪府池田市 H様
改修リフォーム
-
内装・改修リフォーム
店舗・社屋改装
大阪府豊中市 学校法人 大商学園高等学校様
カフェテリアリフォーム
-
内装・改修リフォーム
玄関・窓まわりリフォーム
大阪府吹田市 F 様
マンションリフォーム
-
内装・改修リフォーム
リノベーション
玄関・窓まわりリフォーム
兵庫県川西市 I様
戸建てリノベーション
-
内装・改修リフォーム
リノベーション
兵庫県 T様
マンションリノベーション
-
内装・改修リフォーム
玄関・窓まわりリフォーム
大阪府豊中市 N様
1F改修リフォーム
-
大阪府豊中市 N様
新築事例
-
リノベーション
玄関・窓まわりリフォーム
兵庫県尼崎市 I様
リノベーション
-
店舗・社屋改装
大阪府池田市 多機能型事務所Gootela(ぐーてら)様
店舗リフォーム
-
リノベーション
大阪府豊能郡 M様
1Fリビング拡張・2Fリノベーション
-
店舗・社屋改装
大阪市北区 Lounge Range 大阪様
店舗リフォーム
-
外壁・屋根の改装・リフォーム
リノベーション
コンテスト受賞
大阪府 H様
戸建てリノベーション
-
リノベーション
コンテスト受賞
大阪府豊中市 N様
マンションリノベーション
-
リノベーション
大阪府箕面市 S様
マンションリノベーション
-
内装・改修リフォーム
玄関・窓まわりリフォーム
兵庫県西宮市 K様
1F改修リフォーム
-
店舗・社屋改装
大阪府豊中市 株式会社 整備技研 様
社屋新設
-
内装・改修リフォーム
兵庫県西宮市 Y様
マンションリフォーム
-
内装・改修リフォーム
外壁・屋根の改装・リフォーム
玄関・窓まわりリフォーム
大阪府豊中市 N様
改修リフォーム
-
内装・改修リフォーム
大阪府豊中市 Y様
改修リフォーム
-
内装・改修リフォーム
玄関・窓まわりリフォーム
大阪府豊中市 I様
和室 → 洋室リフォーム
-
外壁・屋根の改装・リフォーム
リノベーション
兵庫県尼崎市 M様
戸建てリノベーション
-
外壁・屋根の改装・リフォーム
リノベーション
コンテスト受賞
大阪市 W様
戸建てリノベーション
-
店舗・社屋改装
大阪府池田市 MOMB石橋 放課後デイサービス様
店舗リフォーム
-
内装・改修リフォーム
大阪市 D様
マンションリフォーム
-
外壁・屋根の改装・リフォーム
リノベーション
兵庫県西宮市 O様
戸建てリノベーション
-
外壁・屋根の改装・リフォーム
リノベーション
大阪府羽曳野市 U様
マンションリノベーション
-
内装・改修リフォーム
玄関・窓まわりリフォーム
大阪府豊中市 I様邸
リビングダイニングリフォーム
-
内装・改修リフォーム
外壁・屋根の改装・リフォーム
玄関・窓まわりリフォーム
大阪府藤井寺市 H様邸
改修リフォーム
-
リノベーション
コンテスト受賞
大阪市 M様
マンションリノベーション
-
内装・改修リフォーム
大阪府豊中市 A様邸
マンションリフォーム
-
リノベーション
玄関・窓まわりリフォーム
兵庫県三田市 M様邸
離れ改修工事
-
内装・改修リフォーム
大阪府吹田市 I様邸
水廻りリフォーム
-
リノベーション
大阪府豊中市 YumHouse様
マンションリノベーション
-
内装・改修リフォーム
大阪府豊中市 M様邸
リビング拡張LDKリフォーム
-
リノベーション
コンテスト受賞
大阪市 Y様邸
2世帯住宅リノベーション
-
店舗・社屋改装
大阪府豊中市 裕 HIRO 様
新設改装リフォーム
-
内装・改修リフォーム
外壁・屋根の改装・リフォーム
玄関・窓まわりリフォーム
大阪府高槻市 T様邸
改修リフォーム
-
内装・改修リフォーム
玄関・窓まわりリフォーム
大阪府豊中市 K様邸
改修リフォーム
-
リノベーション
兵庫県宝塚市 U様邸
戸建てリノベーション
-
店舗・社屋改装
大阪府豊中市 ワールドプラスジム豊中桜塚店 様
新設改装リフォーム
-
リノベーション
兵庫県尼崎市 Y様邸
4Fリノベーション
-
外壁・屋根の改装・リフォーム
店舗・社屋改装
大阪府池田市 東山自動車工業 株式会社 様
屋根・外壁 塗装リフォーム
-
内装・改修リフォーム
京都市 N様邸
マンションリフォーム
-
内装・改修リフォーム
兵庫県西宮市 U様邸
マンションリフォーム
-
店舗・社屋改装
大阪府守口市 ルポゼソリューション株式会社 様
事務所リフォーム
-
内装・改修リフォーム
兵庫県尼崎市 F様邸
内装・水まわりリフォーム
-
内装・改修リフォーム
大阪府池田市 S様邸
LDK拡張リフォーム
-
内装・改修リフォーム
兵庫県伊丹市 M様邸
幹太くん設置
-
内装・改修リフォーム
大阪府豊能郡 S様邸
キャットウォーク施工
-
外壁・屋根の改装・リフォーム
兵庫県川西市 K様邸
屋根塗装
-
内装・改修リフォーム
兵庫県川西市 K様邸
LDKリフォーム
-
外壁・屋根の改装・リフォーム
大阪府豊中市 I様邸
外壁塗装
-
内装・改修リフォーム
コンテスト受賞
兵庫県宝塚市 T様邸
マンションリフォーム
-
内装・改修リフォーム
大阪府豊中市 S様邸
マンションリフォーム
-
内装・改修リフォーム
兵庫県川辺郡 M様邸
キッチンリフォーム
-
内装・改修リフォーム
大阪府豊中市 Y様邸
マンションリフォーム
-
外壁・屋根の改装・リフォーム
兵庫県尼崎市 N様邸
屋根 葺き替えリフォーム
-
外壁・屋根の改装・リフォーム
兵庫県尼崎市 N様邸
外壁塗装
-
内装・改修リフォーム
兵庫県尼崎市 N様邸
2・3F改修リフォーム
-
内装・改修リフォーム
大阪府箕面市 O様邸
2F改修リフォーム
-
内装・改修リフォーム
コンテスト受賞
兵庫県西宮市 F様邸
マンションリフォーム
-
店舗・社屋改装
大阪府吹田市 ビタレーザラボ様
フィットネスジム新設
-
内装・改修リフォーム
大阪府豊中市 Y様邸
改装リフォーム
-
内装・改修リフォーム
大阪府豊中市 T様邸
乾太くん設置
-
玄関・窓まわりリフォーム
大阪府豊中市 T様邸
宅配ポスト設置
-
内装・改修リフォーム
兵庫県尼崎市 K様邸
マンションリフォーム
-
内装・改修リフォーム
大阪府茨木市 S様邸
改修リフォーム
-
外壁・屋根の改装・リフォーム
兵庫県宝塚市 M様邸
屋根・外壁塗装
-
外壁・屋根の改装・リフォーム
大阪府豊中市 N様邸
マンション外壁塗装リフォーム
-
リノベーション
コンテスト受賞
大阪府豊中市 N様邸
マンションリノベーション
-
店舗・社屋改装
大阪府豊中市 レンガ 株式会社ワタナベ 様
社屋新設
-
外壁・屋根の改装・リフォーム
玄関・窓まわりリフォーム
兵庫県川西市 M様邸
屋根・外壁 塗装リフォーム
-
内装・改修リフォーム
兵庫県宝塚市 S様邸
マンションリフォーム
-
店舗・社屋改装
大阪府豊中市 お魚とおでんとお寿司1122 富久田や 様
店舗内装リフォーム
-
内装・改修リフォーム
大阪市西淀川区 K様邸
改装リフォーム
-
店舗・社屋改装
大阪府箕面市 季節天ぷら料理 笑和 様
新設改装リフォーム
-
内装・改修リフォーム
大阪府豊中市 H様邸
キッチン収納リフォーム
-
外壁・屋根の改装・リフォーム
大阪府豊中市 T様邸
屋根・外壁 塗装リフォーム
-
リノベーション
大阪府豊中市 K様邸
平屋リノベーション
-
リノベーション
大阪府箕面市 I様邸
2Fリノベーション
-
店舗・社屋改装
大阪府豊中市 包装・梱包 ニューDM社 様
工場区画リフォーム
-
外壁・屋根の改装・リフォーム
大阪府吹田市 Y様邸
屋根 葺き替えリフォーム
-
内装・改修リフォーム
大阪府箕面市 Y様邸
マンションリフォーム
-
内装・改修リフォーム
兵庫県西宮市 K様邸
和室→洋室リフォーム
-
内装・改修リフォーム
大阪府豊中市 N様邸
トイレ内装リフォーム
-
店舗・社屋改装
大阪府伊丹市 フィットネスジム SDF24伊丹 様
新設改装リフォーム
-
内装・改修リフォーム
大阪市 S様邸
キッチン・内装リフォーム
-
外壁・屋根の改装・リフォーム
大阪府豊中市 Y様邸
屋根 葺替えリフォーム
-
リノベーション
大阪市 T様邸
マンションリノベーション
-
内装・改修リフォーム
大阪市 M様邸
LDKリフォーム
-
内装・改修リフォーム
兵庫県宝塚市 F様邸
1F改装リフォーム
-
外壁・屋根の改装・リフォーム
大阪市淀川区 W様邸
屋根 葺替えリフォーム(台風被害復旧)
-
店舗・社屋改装
大阪府豊中市 喜界島ざらめの焼き菓子工房 haba sa hana 様
新設改装リフォーム



















