リノベーション
コンテスト受賞
ランドリールーム
外壁塗装
戸建て
大阪府高槻市 M様
戸建てリノベーション
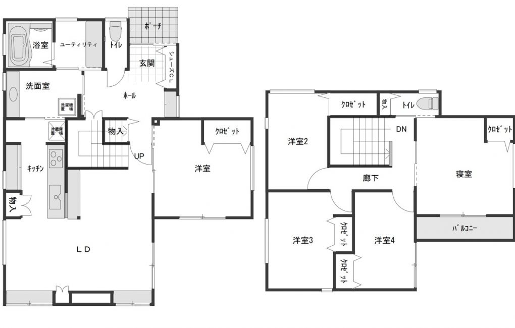
BEFORE

STORY
築30年になるお住まいを、20年前に中古住宅として購入されたご夫婦とお子さま3人のM様ファミリー。
一度もリフォームしていない水まわりを新調し、動線が不便で散らかりやすいLDKを家族がゆったりとくつろげる空間にしたい・・・という思いがリノベーションのきっかけでした。
OWNER'S VOICE
想いを100%以上に叶えてくれた工務店
最初は大手工務店さんのプランが気に入っていましたが、予算の都合で諦めなくてはいけないことが多く、希望の70%程度しか叶いそうにありませんでした。
そんな時に出会ったのが多賀工務店さん。私たちの思いを私たちの予算で叶えていただけることが決め手となり、我が家のリノベーションをお願いすることになりました。
ほぼ毎日通った現場
工事期間中は、仮住まいからほぼ毎日現場へ足を運びました。実家の母もよく立ち寄っていて、職人さんたちと楽しく会話する姿も。現場全体が温かい雰囲気で、安心して工事をお任せできました。
現場で気になる点があった際には「おうちノート」というツールでいつでも確認・連絡できるので、とても便利でした。
理想のキッチンが現実に
いくつものショールームを巡った結果、「きれい除菌水」が決め手となり、TOTOの「ザ・クラッソ」に。ハイグレードなキッチンを予算内で実現できたのは嬉しい驚きでした。
さらに、木目調のクロスになると思っていた天井にウッドパネルが施工されていたのを発見した時の感激といったら・・・。とても素敵なサプライズでした!
また、子どもたちの成長を刻んだ柱を加工して飾っていただきました。以前の家での思い出が今の暮らしに続いているようで嬉しいですね。

“気持ちよく片づく”室内干し空間
リビングに洗濯物を干していたこれまでの暮らしを見直し、脱衣スペースを広げて室内干し用のパイプを設置。しっかりとした造りで安心感があり、たっぷり干せるのも嬉しいポイントですね。家事ストレスを大幅に軽減できそうです。

仕上がりが想像以上に素敵だった外壁塗装
屋根の修繕と外壁塗装もお願いしました。思い切って選んだ外壁のダークカラーが、既存部分と見事に調和して落ち着きのある外観に。想像以上に素敵になって嬉しいですね。

“押しつけない誠実さ”が決め手
他社の営業さんは押しの強い方や、逆にソフトすぎる方が多い中、岡村さんは「よかったらどうぞ」という自然体な対応。でも、いざ工事が始まると、素人では気づけない細部まで丁寧にフォローしてくださり、その仕上がりに大・大・大満足しています!
「プロの仕事とはこういうこと」と感じられる、本当に信頼できる工務店さんでした。
完工日
2025年9月
建物概要
戸建て 築約30年
施工箇所
フルリノベーション
費用
1750万
施工期間
約2.5ヵ月
商品情報
キッチン:TOTO 「ザ・クラッソ」 ミディアムウッドN
商品情報
浴室:TOTO「サザナ」HTシリーズ 1616
商品情報
トイレ:TOTO「ネオレストRS1」・「ピュアレストEX]
商品情報
洗面化粧台:タカラスタンダード「エリーナ」W165 ローズウッドダーク
商品情報
玄関扉:LIXIL「エルムーブ」L28型
◆担当営業からM様へ
この度はご依頼いただき、ありがとうございました。仕上がりにご満足いただけたようで、本当に良かったです。M様がチャットで都度、質問やご指摘いただけたおかげだと思っております。
お客様のご希望を出来る限り形に変えていくのが我々の仕事だと思っていますので、マメに連絡が取れるツールがあって本当に良かったと思います。
これからのM様ご家族の楽しく快適な空間と出来たようで、私どもも感激しております。また、定期点検にお伺いいたしますので、時間がたってからの感想を楽しみにしております。今後とも、よろしくお願いいたします。

岡村
◆担当大工からM様へ
工事期間中は大変お世話になりました。今回の工事はかなり大規模な内容でしたので、私も強い気持ちで臨ませていただきました。
着工の日から毎日のように、お母様からオロナミンCの差し入れを頂き、本当にありがとうございました。いつしか、お母様がお見えになると「3時の休憩」というルーティンになっていました。お姿が見えない日があると思わず心配してしまうほど毎日現場にお越しくださり、感謝の気持ちでいっぱいです。
また、お会いするたびに温かいお言葉をかけてくださったお施主様ご夫妻にも、心よりお礼申し上げます。M様邸の工事を通して、職人としても、人としても多くのことを学ばせていただきました。長期間にわたり、本当にありがとうございました。

森本
カテゴリCategory/
その他の施工実績はこちら
-
内装・改修リフォーム
川辺郡 U様
補助金を活用した水まわりリフォーム|浴室拡張&エコキュート導入で快適な住まいへ
-
リノベーション
大阪市阿倍野区 K様
築47年の実家を賃貸住宅へ|住む人目線で整えた再生リノベーション
-
内装・改修リフォーム
川西市 F様
マンションリフォーム
-
内装・改修リフォーム
豊中市 O様
床リフォーム
-
外壁・屋根の改装・リフォーム
豊中市 M様
外壁塗装・瓦補修
-
内装・改修リフォーム
豊中市 D様
マンションリフォーム
-
玄関・窓まわりリフォーム
吹田市 D様
外構リフォーム
-
内装・改修リフォーム
外壁・屋根の改装・リフォーム
玄関・窓まわりリフォーム
大阪市西淀川区 U様
水まわり・外壁塗装・屋根・内窓リフォーム
-
内装・改修リフォーム
玄関・窓まわりリフォーム
兵庫県尼崎市 K様
和室→洋室・トイレ・エクステリアリフォーム
-
内装・改修リフォーム
大阪府箕面市 O様
マンションリノベーション
-
玄関・窓まわりリフォーム
兵庫県尼崎市 T様
カーポート新設リフォーム
-
内装・改修リフォーム
兵庫県川西市 O様
戸建てリノベーション
-
外壁・屋根の改装・リフォーム
大阪市淀川区 O様
外壁・屋根塗装
-
外壁・屋根の改装・リフォーム
大阪府豊中市 N様
外壁・屋根塗装
-
内装・改修リフォーム
大阪府吹田市 D様
水まわり・和室→洋室リフォーム
-
リノベーション
コンテスト受賞
大阪府高槻市 M様
戸建てリノベーション
-
内装・改修リフォーム
兵庫県川西市 O様
リビング内装・サニタリーリフォーム
-
リノベーション
コンテスト受賞
大阪市旭区 W様
2Fリノベーション
-
内装・改修リフォーム
コンテスト受賞
大阪府豊中市 Y様
マンション改修
-
内装・改修リフォーム
玄関・窓まわりリフォーム
大阪府豊中市 S様
マンション改修
-
外壁・屋根の改装・リフォーム
大阪府豊中市 H様
外壁・屋根塗装リフォーム
-
内装・改修リフォーム
兵庫県川西市 K様
サニタリーリフォーム
-
外壁・屋根の改装・リフォーム
リノベーション
大阪市西淀川区 Y様
2・3階リノベーション
-
内装・改修リフォーム
玄関・窓まわりリフォーム
大阪府豊中市 K様
内装・水まわり・エクステリアリフォーム
-
外壁・屋根の改装・リフォーム
玄関・窓まわりリフォーム
大阪府枚方市 A様
外壁塗装・エクステリアリフォーム
-
内装・改修リフォーム
大阪府池田市 H様
改修リフォーム
-
内装・改修リフォーム
店舗・社屋改装
大阪府豊中市 学校法人 大商学園高等学校様
カフェテリアリフォーム
-
内装・改修リフォーム
玄関・窓まわりリフォーム
大阪府吹田市 F 様
マンションリフォーム
-
内装・改修リフォーム
リノベーション
玄関・窓まわりリフォーム
兵庫県川西市 I様
戸建てリノベーション
-
内装・改修リフォーム
リノベーション
兵庫県 T様
マンションリノベーション
-
内装・改修リフォーム
玄関・窓まわりリフォーム
大阪府豊中市 N様
1F改修リフォーム
-
大阪府豊中市 N様
新築事例
-
リノベーション
玄関・窓まわりリフォーム
兵庫県尼崎市 I様
リノベーション
-
店舗・社屋改装
大阪府池田市 多機能型事務所Gootela(ぐーてら)様
店舗リフォーム
-
リノベーション
大阪府豊能郡 M様
1Fリビング拡張・2Fリノベーション
-
店舗・社屋改装
大阪市北区 Lounge Range 大阪様
店舗リフォーム
-
外壁・屋根の改装・リフォーム
リノベーション
コンテスト受賞
大阪府 H様
戸建てリノベーション
-
リノベーション
コンテスト受賞
大阪府豊中市 N様
マンションリノベーション
-
リノベーション
大阪府箕面市 S様
マンションリノベーション
-
内装・改修リフォーム
玄関・窓まわりリフォーム
兵庫県西宮市 K様
1F改修リフォーム
-
店舗・社屋改装
大阪府豊中市 株式会社 整備技研 様
社屋新設
-
内装・改修リフォーム
兵庫県西宮市 Y様
マンションリフォーム
-
内装・改修リフォーム
外壁・屋根の改装・リフォーム
玄関・窓まわりリフォーム
大阪府豊中市 N様
改修リフォーム
-
内装・改修リフォーム
大阪府豊中市 Y様
改修リフォーム
-
内装・改修リフォーム
玄関・窓まわりリフォーム
大阪府豊中市 I様
和室 → 洋室リフォーム
-
外壁・屋根の改装・リフォーム
リノベーション
兵庫県尼崎市 M様
戸建てリノベーション
-
外壁・屋根の改装・リフォーム
リノベーション
コンテスト受賞
大阪市 W様
戸建てリノベーション
-
店舗・社屋改装
大阪府池田市 MOMB石橋 放課後デイサービス様
店舗リフォーム
-
内装・改修リフォーム
大阪市 D様
マンションリフォーム
-
外壁・屋根の改装・リフォーム
リノベーション
兵庫県西宮市 O様
戸建てリノベーション
-
外壁・屋根の改装・リフォーム
リノベーション
大阪府羽曳野市 U様
マンションリノベーション
-
内装・改修リフォーム
玄関・窓まわりリフォーム
大阪府豊中市 I様邸
リビングダイニングリフォーム
-
内装・改修リフォーム
外壁・屋根の改装・リフォーム
玄関・窓まわりリフォーム
大阪府藤井寺市 H様邸
改修リフォーム
-
リノベーション
コンテスト受賞
大阪市 M様
マンションリノベーション
-
内装・改修リフォーム
大阪府豊中市 A様邸
マンションリフォーム
-
リノベーション
玄関・窓まわりリフォーム
兵庫県三田市 M様邸
離れ改修工事
-
内装・改修リフォーム
大阪府吹田市 I様邸
水廻りリフォーム
-
リノベーション
大阪府豊中市 YumHouse様
マンションリノベーション
-
内装・改修リフォーム
大阪府豊中市 M様邸
リビング拡張LDKリフォーム
-
リノベーション
コンテスト受賞
大阪市 Y様邸
2世帯住宅リノベーション
-
店舗・社屋改装
大阪府豊中市 裕 HIRO 様
新設改装リフォーム
-
内装・改修リフォーム
外壁・屋根の改装・リフォーム
玄関・窓まわりリフォーム
大阪府高槻市 T様邸
改修リフォーム
-
内装・改修リフォーム
玄関・窓まわりリフォーム
大阪府豊中市 K様邸
改修リフォーム
-
リノベーション
兵庫県宝塚市 U様邸
戸建てリノベーション
-
店舗・社屋改装
大阪府豊中市 ワールドプラスジム豊中桜塚店 様
新設改装リフォーム
-
リノベーション
兵庫県尼崎市 Y様邸
4Fリノベーション
-
外壁・屋根の改装・リフォーム
店舗・社屋改装
大阪府池田市 東山自動車工業 株式会社 様
屋根・外壁 塗装リフォーム
-
内装・改修リフォーム
京都市 N様邸
マンションリフォーム
-
内装・改修リフォーム
兵庫県西宮市 U様邸
マンションリフォーム
-
店舗・社屋改装
大阪府守口市 ルポゼソリューション株式会社 様
事務所リフォーム
-
内装・改修リフォーム
兵庫県尼崎市 F様邸
内装・水まわりリフォーム
-
内装・改修リフォーム
大阪府池田市 S様邸
LDK拡張リフォーム
-
内装・改修リフォーム
兵庫県伊丹市 M様邸
幹太くん設置
-
内装・改修リフォーム
大阪府豊能郡 S様邸
キャットウォーク施工
-
外壁・屋根の改装・リフォーム
兵庫県川西市 K様邸
屋根塗装
-
内装・改修リフォーム
兵庫県川西市 K様邸
LDKリフォーム
-
外壁・屋根の改装・リフォーム
大阪府豊中市 I様邸
外壁塗装
-
内装・改修リフォーム
コンテスト受賞
兵庫県宝塚市 T様邸
マンションリフォーム
-
内装・改修リフォーム
大阪府豊中市 S様邸
マンションリフォーム
-
内装・改修リフォーム
兵庫県川辺郡 M様邸
キッチンリフォーム
-
内装・改修リフォーム
大阪府豊中市 Y様邸
マンションリフォーム
-
外壁・屋根の改装・リフォーム
兵庫県尼崎市 N様邸
屋根 葺き替えリフォーム
-
外壁・屋根の改装・リフォーム
兵庫県尼崎市 N様邸
外壁塗装
-
内装・改修リフォーム
兵庫県尼崎市 N様邸
2・3F改修リフォーム
-
内装・改修リフォーム
大阪府箕面市 O様邸
2F改修リフォーム
-
内装・改修リフォーム
コンテスト受賞
兵庫県西宮市 F様邸
マンションリフォーム
-
店舗・社屋改装
大阪府吹田市 ビタレーザラボ様
フィットネスジム新設
-
内装・改修リフォーム
大阪府豊中市 Y様邸
改装リフォーム
-
内装・改修リフォーム
大阪府豊中市 T様邸
乾太くん設置
-
玄関・窓まわりリフォーム
大阪府豊中市 T様邸
宅配ポスト設置
-
内装・改修リフォーム
兵庫県尼崎市 K様邸
マンションリフォーム
-
内装・改修リフォーム
大阪府茨木市 S様邸
改修リフォーム
-
外壁・屋根の改装・リフォーム
兵庫県宝塚市 M様邸
屋根・外壁塗装
-
外壁・屋根の改装・リフォーム
大阪府豊中市 N様邸
マンション外壁塗装リフォーム
-
リノベーション
コンテスト受賞
大阪府豊中市 N様邸
マンションリノベーション
-
店舗・社屋改装
大阪府豊中市 レンガ 株式会社ワタナベ 様
社屋新設
-
外壁・屋根の改装・リフォーム
玄関・窓まわりリフォーム
兵庫県川西市 M様邸
屋根・外壁 塗装リフォーム
-
内装・改修リフォーム
兵庫県宝塚市 S様邸
マンションリフォーム
-
店舗・社屋改装
大阪府豊中市 お魚とおでんとお寿司1122 富久田や 様
店舗内装リフォーム
-
内装・改修リフォーム
大阪市西淀川区 K様邸
改装リフォーム
-
店舗・社屋改装
大阪府箕面市 季節天ぷら料理 笑和 様
新設改装リフォーム
-
内装・改修リフォーム
大阪府豊中市 H様邸
キッチン収納リフォーム
-
外壁・屋根の改装・リフォーム
大阪府豊中市 T様邸
屋根・外壁 塗装リフォーム
-
リノベーション
大阪府豊中市 K様邸
平屋リノベーション
-
リノベーション
大阪府箕面市 I様邸
2Fリノベーション
-
店舗・社屋改装
大阪府豊中市 包装・梱包 ニューDM社 様
工場区画リフォーム
-
外壁・屋根の改装・リフォーム
大阪府吹田市 Y様邸
屋根 葺き替えリフォーム
-
内装・改修リフォーム
大阪府箕面市 Y様邸
マンションリフォーム
-
内装・改修リフォーム
兵庫県西宮市 K様邸
和室→洋室リフォーム
-
内装・改修リフォーム
大阪府豊中市 N様邸
トイレ内装リフォーム
-
店舗・社屋改装
大阪府伊丹市 フィットネスジム SDF24伊丹 様
新設改装リフォーム
-
内装・改修リフォーム
大阪市 S様邸
キッチン・内装リフォーム
-
外壁・屋根の改装・リフォーム
大阪府豊中市 Y様邸
屋根 葺替えリフォーム
-
リノベーション
大阪市 T様邸
マンションリノベーション
-
内装・改修リフォーム
大阪市 M様邸
LDKリフォーム
-
内装・改修リフォーム
兵庫県宝塚市 F様邸
1F改装リフォーム
-
外壁・屋根の改装・リフォーム
大阪市淀川区 W様邸
屋根 葺替えリフォーム(台風被害復旧)
-
店舗・社屋改装
大阪府豊中市 喜界島ざらめの焼き菓子工房 haba sa hana 様
新設改装リフォーム



















